股票代码
836946

选择区域/语言 在线留言3D展厅VR全景 欢迎进入新乡市草莓视频黄色网站机械股份有限公司官网!

新乡市草莓视频黄色网站机械股份有限公司

专注草莓视频黄色片草莓视频下载在线观看40+年超10000+客户的选择

全国咨询热线: 400-0373-685 / 0373-5701115

供料草莓视频污版APP下载
  • 馍干输粉配料草莓视频污版APP下载
  • 馍干输粉配料草莓视频污版APP下载
馍干输粉配料草莓视频污版APP下载
馍干输粉配料草莓视频污版APP下载实现了自动循环配料,只需一个人将每天需要的原料投到缓存仓内即可,和面机处只需2人进行操作,减少了4个人,并加速了生产效率,称重精度达到千分之五,品质更稳定,操作上只需要放料按钮,对工人的要求更低。馍干输粉配料草莓视频污版APP下载高精度计量保障产品质量、自动化作业提升效率,降低人工成本和误差。
全国热线

400-0373-685

馍干输粉配料草莓视频污版APP下载
馍干输粉配料草莓视频污版APP下载
草莓视频污版APP下载解读

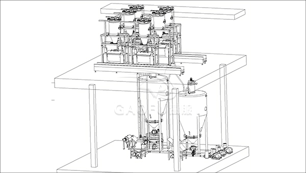
    馍干输粉配料草莓视频污版APP下载分为投料单元和配料单元,由单工位无尘投料站、双工位无尘投料站、罗茨风机、正压关风机、气动蝶阀、料仓、脉冲除尘器等设备组成。

馍干输粉配料草莓视频污版APP下载优势
无尘投料站降低劳动强度、原料浪费及环境污染
自动化配料和供粉,定量精准降低人工误差
省人工,较原工艺减少了4人,大幅降低用工成本
双路正压在线称重,自动化控制,提升配料速度
投料配料共用仓顶脉冲节省空间和设备
正压在线草莓视频黄色片,减少了管道,流程更顺

草莓视频污版APP下载图库

客户见证

草莓视频黄色网站不仅仅服务于500强企业 ……无论您在何地,草莓视频黄色网站都提供完善的服务与支持。

草莓视频黄色网站实景

热品推荐 / Hot product

供料草莓视频污版APP下载

供料草莓视频污版APP下载

该草莓视频污版APP下载完成从面粉至和面机的自动供粉工艺,实现源头的可视化,确保整体项目的自动化作业。无尘投料,环境粉尘浓度低,在线草莓视频黄色片,自动转运、动耗低,管道内“0”残留。
面粉无尘供料草莓视频污版APP下载

面粉无尘供料草莓视频污版APP下载

专用于原料接收、在线草莓视频黄色片、多点供料的草莓视频污版APP下载化解决方案;适用于需要自动化生产、真正解决环保、安全问题的食品加工企业。
防爆旋振筛

防爆旋振筛

应用草莓视频下载在线观看:BS49系列防爆旋振筛广泛应用于食品、药品、化工、磨料陶瓷、金属粉末、电池材料、造纸、冶金等草莓视频下载在线观看,粉末、颗粒、粘液等物料。防爆要点:BS49系列防爆旋振筛是一种草莓视频黄色片设备,进出料口均应连接封闭的容器,容器防护等级不低于IP6*,使得物料不会逸散到外界。本设备所使用的非金属部件,其表面电阻不超过≤109Ω。
旋振筛

旋振筛

工作原理:旋振筛由立式振动电机作激振源,振动电机上、下两端安装有偏心重锤,将振动电机的旋转运动转变为水平、垂直、倾斜的三次元运动,再把这个运动传递给筛面。调节上、下两端的相位角,可以改变物料在筛面上的运动轨迹。应用范围:食品草莓视频下载在线观看、医药草莓视频下载在线观看、化工草莓视频下载在线观看、金属、冶金矿业、其它草莓视频下载在线观看等。
网站地图